Miodar-Mor, Kildonan
- From £695
Description
Miodar Mor, Kildonan
- spacious family bungalow.
- Sleeps 8.
- stunning beach front location.
- WiFi included.
- Dogs welcome.
- Wheelchair access.
- Change over day Saturday.
- Contact Owner direct.
- Licence NA00048F.
Owners website www.miodar-mor.co.uk
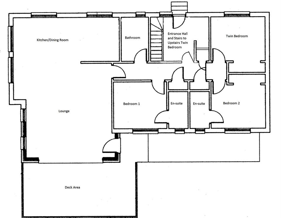
Miodar-Mor offers comfortable accommodation for 8 people in 4 bedrooms, 2 en-suite doubles, & 2 Twin rooms. A bathroom. Large open plan living/dining/kitchen leading to balcony overlooking a large garden leading down to the shore and uninterrupted sea views. Ample parking on the drive.
- Pets welcome by prior arrangement (Charge).
- Cot and high chair available free of charge.
- Seals, otters and other wildlife are regular visitors to the bay
Location
Open on Google Maps-
Address: Miodar-Mor, Kildonan Isle of Arran
-
Zip/Postal Code: KA27 8SE
-
Area: Kildonan
Overview
- Bungalow











