Silverbank View 2, Whiting Bay
- £950
Description
Silverbank View 2, Whiting Bay
- is a beautiful new build property with Shore Road location close to all village amenities in popular Whiting Bay.
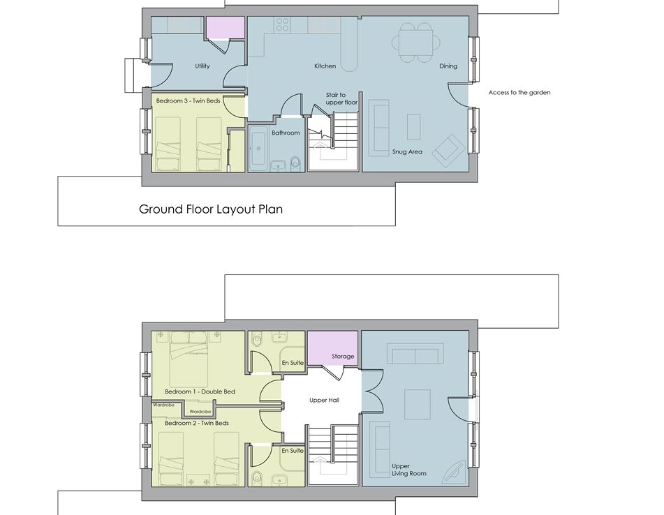
- Sleeps 6 in 1 Double en suite, 1 Twin en suite and 1 ground floor Twin sharing the family bathroom.
- I dog welcome. Please note garden is not fenced.
- Friday changeovers.
- Wifi.
- Seaviews
- Contact owner direct.
- Licence: NA0241C
- Energy Efficiency Rating C
- Environmental Impact C
- The owner of this property has been granted the temporary Existing Host Licence with North Ayrshire Council Reference NA0241C, pending the full licence application.
Location
Open on Google Maps-
Address: Silverbank View 2, Whiting Bay
-
Zip/Postal Code: KA27 8FF
-
Area: Whiting Bay
Overview
- Cottage


























